Link alla Geostoria dove sono disponibili informazioni e fotografie di questo e di altri interventi dello stesso ambito tematico
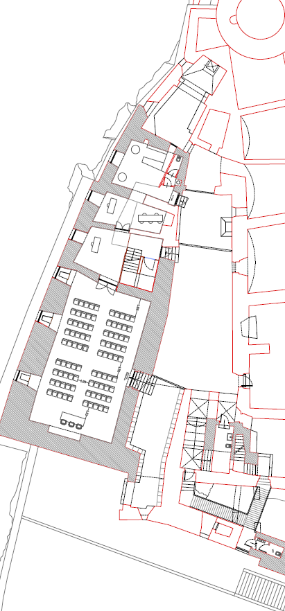
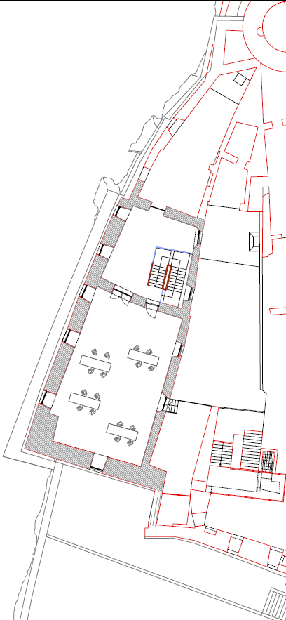
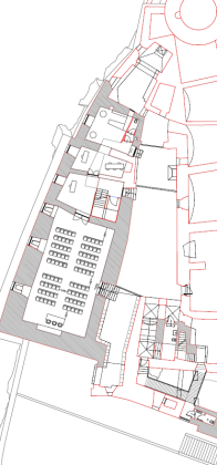
Valorizzazione Castello Caracciolo di Brienza
Link alla Geostoria dove sono disponibili informazioni e fotografie di questo e di altri interventi dello stesso ambito tematico

